

As of early 2025 the permits have expired / locked and the property is for sale with plans. It is not likely to still be built as planned. However there is still a chance.
The Air Rights Tower is a proposed new building by award winning architect and builder Jonathan Segal currently under review by the city. The Air Rights Tower as the name implies takes advantage of the air rights of The Continental also by Segal. Allowing for the 24 story, 250 foot heights of this tower. The property the Air Rights Tower sits on is a narrow 50 feet by 100 feet, this slender tower has a width to height ratio of 5:1.

Source: City of San Diego
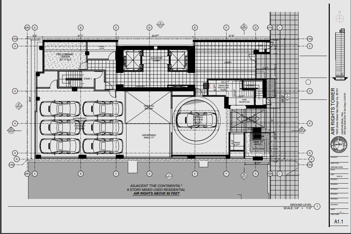
The building design won the 2020 PCBC Gold Nugget Innovation Award due to its use of Air Rights and innovative use of a car elevator to allow for the at the time required parking minimum, and still finding the space for utilities to be accessible as there is no alley. This building is in an amazing location 2 blocks away from the heart of Little Italy and 4 blocks away from the Little Italy Trolley Station, making it ideal for walkability and bikeability. The design has this in mind, having basement storage for residents and a large bicycle storage facility.
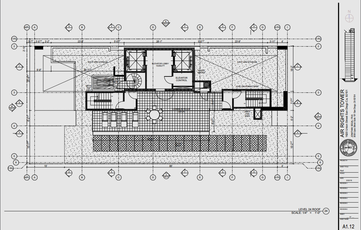
It also takes advantage of the height with a rooftop communal area for residents, and a small private rooftop deck for the 2 story penthouse. With 73 total units, mostly studios and 1 bedroom units, and 8 affordable units.

Source : City of San Diego
The design of the building is Contemporary and Brutalist, featuring a large glass facade flanked by large concrete elements and overhangs. Other materials used are bronze metal panels at the lower floors, covering the parking garage, and black sheet metal between the floors.This design pairs nicely with the neighboring building, The Continental, also designed and built by Jonathan Segal in a brutalist style.

Source : Global Design News
The Air Rights Tower is an amazing example of what you can do with some ambition and skill when it comes to small lots in San Diego. This building will open the door to tiny plots having tall buildings and completely change Little Italy.

Current condition of the lot\ Source : BuildSD\ \ Sources:\ https://aca-prod.accela.com/SANDIEGO/Cap/CapDetail.aspx?Module=DSD&TabName=DSD&capID1=REC22&capID2=00000&capID3=03IG3&agencyCode=SANDIEGO&IsToShowInspection=
https://docs.sandiego.gov/municode/MuniCodeChapter09/Ch09Art08Division06.pdf
https://sandiego.nextrequest.com/requests/22-6200
https://sandiego.nextrequest.com/requests/21-5305
https://sandiego.nextrequest.com/documents/10930218
https://architizer.com/projects/air-rights-tower/
https://ctycms.com/ca-little-italy/docs/civic-prelim-plans--diagrams_compressed.pdf
https://www.jonathansegalarchitect.com/awards
https://online.flippingbook.com/view/925441129/22-23/#zoom=true
Header image: Global Design News