

Under construction on Imperial Ave right now is a unique project. It is San Diego's first project on church owned land. The project, replacing a duplex, will provide 26 units of housing. Housing with the goal of getting homeless veterans and seniors "on their feet" to more permanent housing solutions. As Rev. Harvey Vaughn III of Bethel AME Church said in a KPBS Interview "When I was homeless, did you house me". Bethel One is intended to keep that promise.

Bethel One was planned to be modular container type housing, but was changed to more traditional wood frame construction as prefab units rose in price and orders became delayed. This project also was entirely funded by Church donations and nonprofit funds. It did get a tax break however. Per KPBS this project has an impressive cost of $265,000 per unit. Which is far below the standard costs. This is probably helped by the lack of loans, ownership of the land, and the smaller scale of the project but it is still very impressive.

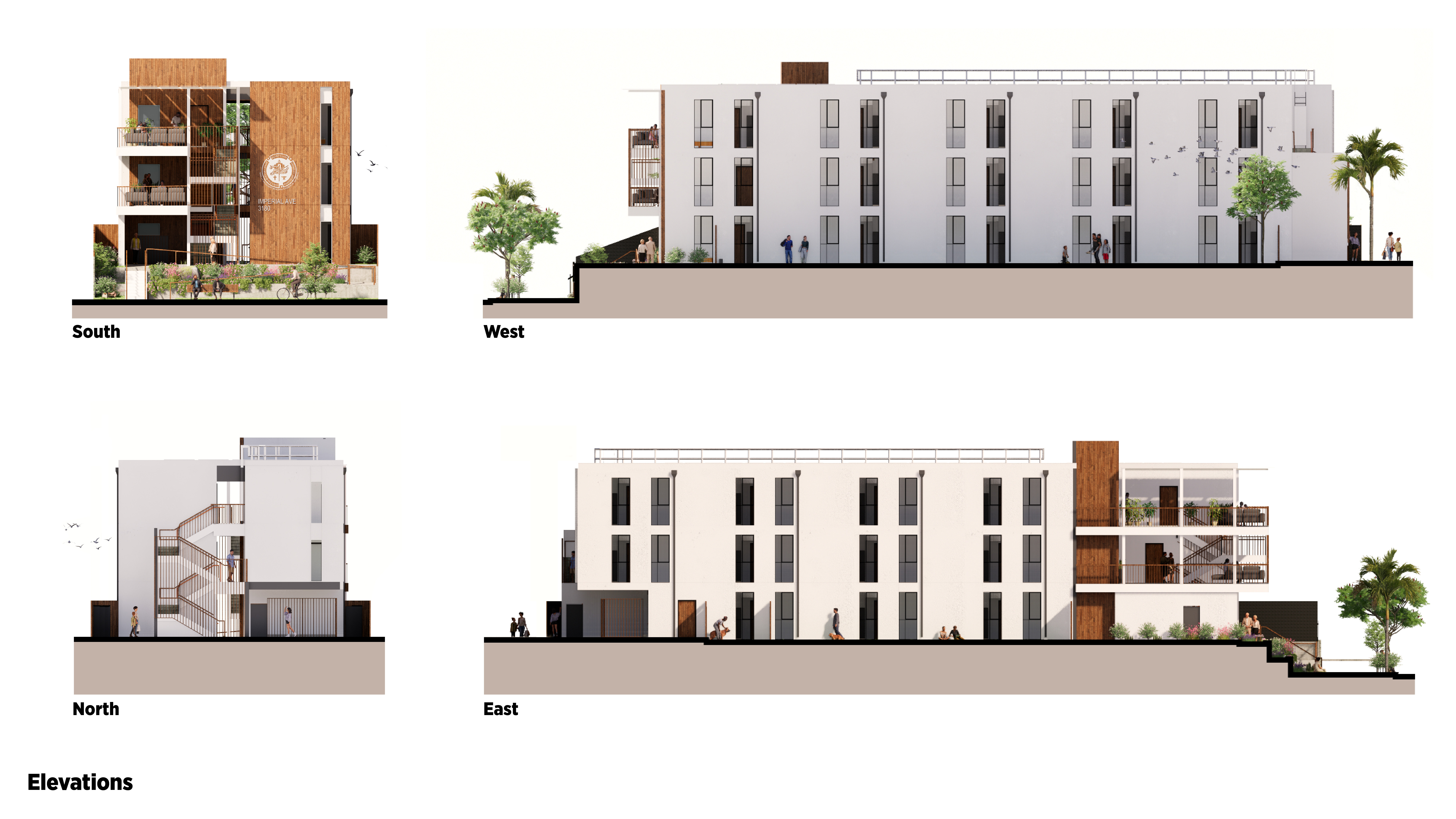
The design itself is a 3 story building on an elevated embankment with a small garden between the stairs and ramps. It has several green areas either side of the property in the setback and patio area on the 2nd and 3rd floors. The ground floor is a open front porch and lobby area. Each unit is a one bedroom, with one being a caretaker unit as many residents will be seniors. The central hallway is really an open breezeway allowing airflow thru the property, which will be great for warm summer days. The setbacks also help with air circulation and the rooftop area has solar panels for lower electric costs.

This project is located nearby the MTS Orange Line, the 4 bus, and the currently under construction Imperial Ave Bikeway. Imperial Ave and other nearby streets also host lots of retail, restaurants, and more.

https://alliancehf.org/housing-continuum/
https://www.avrpstudios.com/portfolio/project-type/affordable-housing/YIGBY.html
https://aiaoc.secure-platform.com/2022/gallery/rounds/27/details/9091
https://lpadesignstudios.com/projects/bethel-ame-veterans-housing
https://sdvoice.info/bethel-ame-breaks-ground-on-low-income-housing-in-logan-heights/