

Render of the proposed building (Martinez + Cutri Urban Studio Corporation)
A new development in Barrio Logan is being planned in an interesting location—the parking lot of an existing affordable housing complex. It is planned as an infill development to maximize the use of the Metropolitan Area Advisory Committee on Anti-Poverty of San Diego County (MAAC).
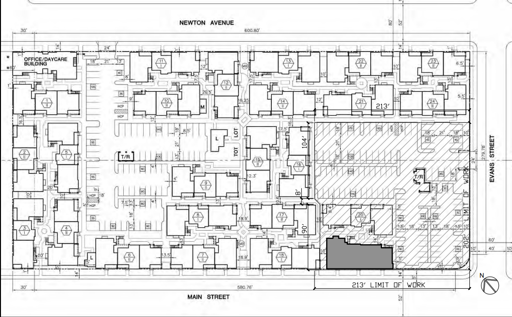
The complex, originally built in 1949, was bought by MAAC in 1994 to renovate into an affordable family housing complex. With 144 units in twenty three separate buildings, the current complex consists primarily of two and three bedroom units and a 2 story amenity building with an on site daycare, a community room, computer room, a community kitchen, and a service coordination space where residents can get supportive services.

Existing site (Google Maps)
As part of the Mercado New Apartments, the existing units and buildings will be rehabilitated to improve the tenant experience and keep them in good condition. Previously, there has been a rent strike by tenants in response to increasing rents and maintenance concerns. All current units and the additional units in the Mercado New Apartments will be 30% to 60% Area Median Income (AMI) affordable.

Diagram of existing complex and footprint of new building (Martinez + Cutri Urban Studio Corporation)
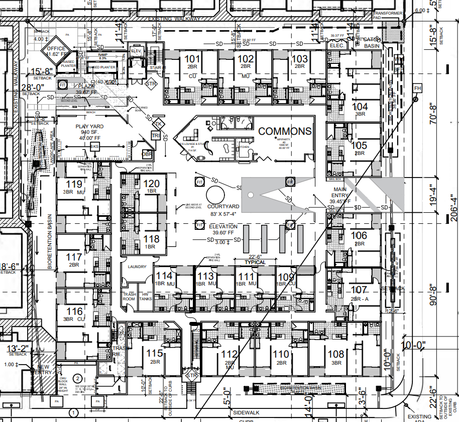
The Mercado New Apartments will demolish 12 of these existing buildings, including one manager's unit, as well one of the two parking lots in the complex. Displaced residents will be given relocation benefits by MAAC. This is to build a total of 92 units, with a net of 80 additional units. The new building will consist of 30 one bedroom, 38 two bedroom, and 24 three bedroom units with one being the managers unit. It will have a total of 4 stories with residential on each floor—the ground floor will contain a central courtyard, a play area for kids, a plaza, offices for management, a laundry room, and a common area as well as residential units, while the top three stories will contain residential units as well as a laundry room on each floor. All units have balconies except on the ground floor where they have patios.

Design of ground floor (Martinez + Cutri Urban Studio Corporation)
The architectural style is contemporary with blocks of color; there is only currently one render of the building, so information is limited. However, from the designs, there could be some points of interest where the building opens and connects to the current complex. The landscaping plan includes drainage basins, new trees, and planters.
This development will bring the existing affordable housing complex from 144 units to 224 units and provide affordable housing to 80 new families in the heart of Barrio Logan, helping low income families stay in the neighborhood as it continues to grow and develop.