
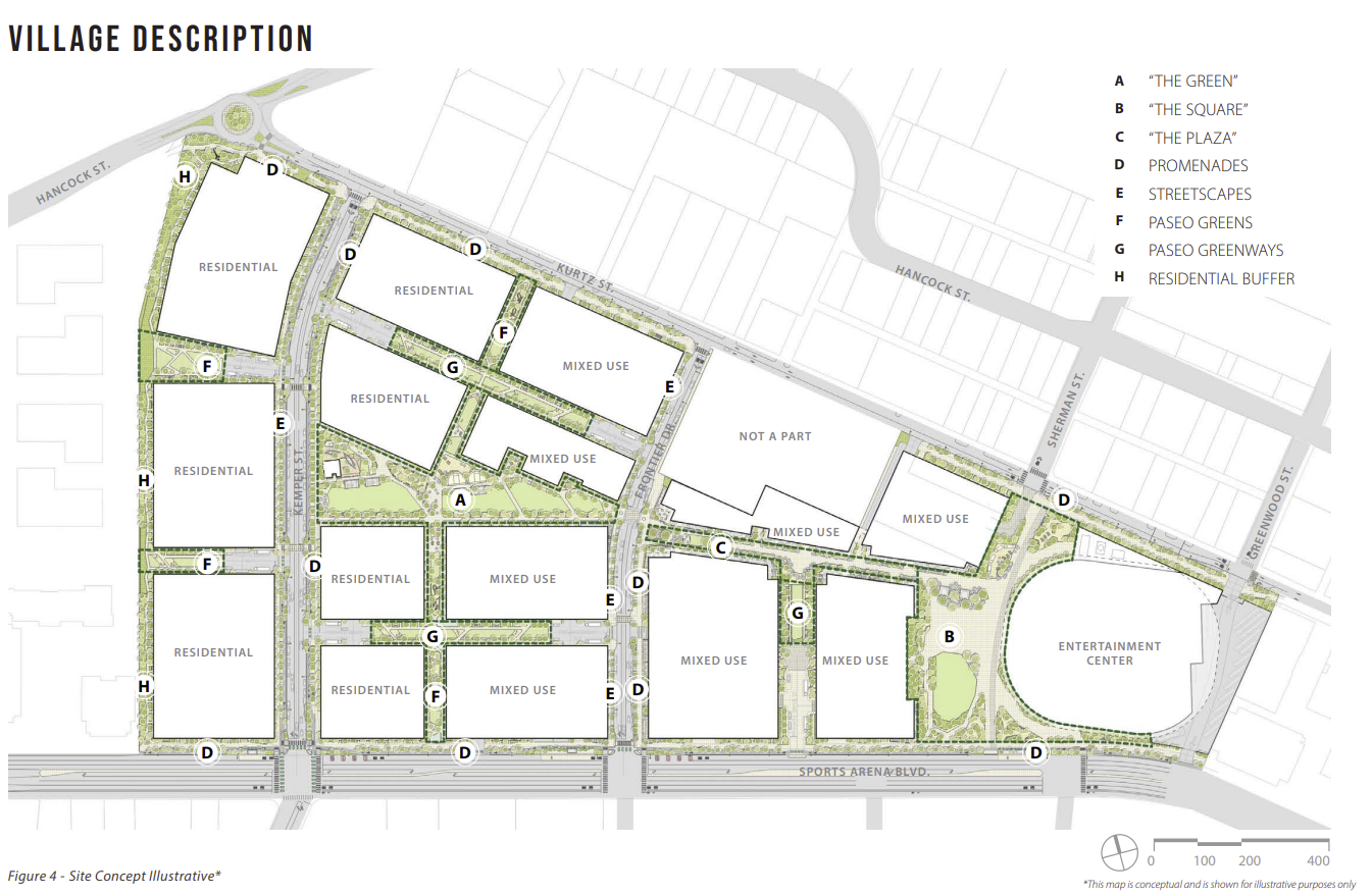
Midway Rising, a major new development planned for the current site of Pechanga Arena and it's surroundings, is in the final stages of approval. The project proposes a brand new 16,000 seat arena to replace the existing one, as well as a 130,000 square foot entertainment district and 14.5 acres of park space. Most importantly, Midway Rising proposes 4,250 new housing units, 2,000 of which will be designated as affordable.
The affordable units will be restricted to 80% of area median income or lower, meaning that those eligible will pay no more than a third of their income in rent per month.
This represents a substantial change in land use for the Sports Arena site, which besides Pechanga Arena currently features several chain businesses, a strip mall, a few warehouses, and a large parking lot that is home to Kobey’s Swap Meet. As part of the Midway Rising plan, all but one plot of warehouses on this extensive site area will be demolished.

The first phase of Midway Rising will bulldoze the buildings on the eastern corner of the site, in its place building a new sports arena, entertainment plaza, and first round of mixed-use buildings. The first phase will also feature dedicated bus lanes along Midway Drive that will be used by MTS routes 8, 9, and a proposed MTS Rapid line. The second phase will then demolish Pechanga Arena and construct the rest of the project.

While the site is currently largely empty, it was once home to Frontier Housing, a World War II-era housing development that contained roughly 3,500 units. Midway Rising will be a best of both worlds scenario for the area - reinstating the previously present affordable housing to alleviate a crushing housing crisis, while also including a brand new arena for all of San Diego to enjoy.
The project is privately funded and will cost $3.9 billion. It is being developed by a combination of several different organizations. Chelsea Investment Corporation will be responsible for procuring the affordable housing aspect of the project. Zephyr is responsible for development of the market rate housing in the project. The Kroenke Group represents additional real estate investment in the project. The new arena itself will be developed by venue management company Legends Global. Once complete, Midway Rising is estimated to generate ~$285 million of economic impact a year, comparable in scale to San Diego Comic-Con.
The project is not without its opposition. Save Our Access, an anti-development group, has filed several lawsuits over the past five years in an attempt to overturn height limit ballot measures allowing the project to be built at this scale. NIMBY activists in Ocean Beach and Point Loma have expressed concerns over increased traffic and the effects the project will have on the Midway District’s neighborhood character. Regardless, the proposal recently received unanimous approval from the San Diego Planning Commission on September 25th, 2025.
Sources: