Under review right now in East Village is an ambitious affordable housing project. A 21 story first tower focused on mixed affordable family housing totaling 318 units and planned to house around (blank) people. The project is 30% to 80% AMI (Area Median Income), meaning this project will house families with a housing voucher to working class families who cant typically afford market rent downtown. All units in this building are 2 and 3 bedrooms.
This is the first of 3 planned towers as part of the Mirka 1000 project, with the admirable goal of creating 1000 affordable housing units. The location is nearby many other affordable housing projects, however there was less concern in the DCPC about concentration of poverty. One member clarified to her board that this project will be home to many working class families who just need more affordable rents. 80% AMI housing is often called "Workforce" housing.
The main concern from the DCPC was the land use, a large portion of the site is being used by parking and a driveway, which the board agreed was not a great use of space downtown. However they are requesting a full site plan from the developer to get a better idea of the land use of the project as a whole and if that driveway will be also used by their 2 neighboring towers.

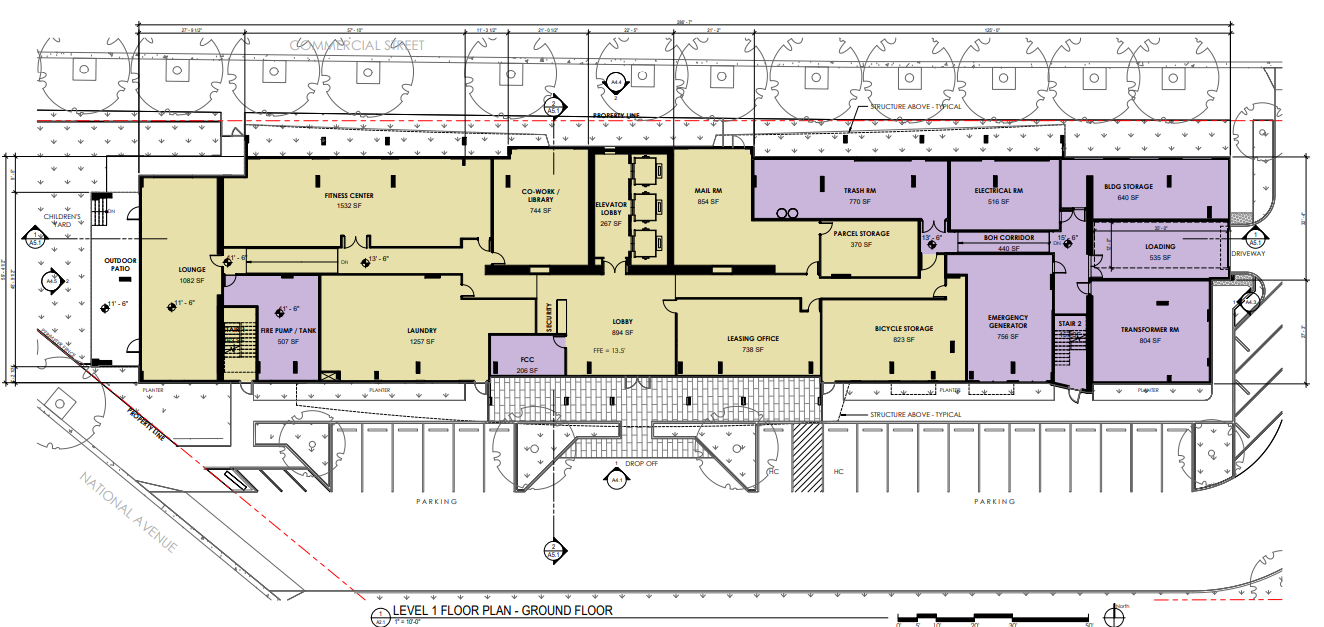
The plans show the ground floor will have a lobby, mail room, a larger parcel storage room, bike storage, laundry room, fitness center, library, and lounge area with an outdoor patio. There is also building facilities on the ground floor for utilities and fire prevention. The outdoor area includes a patio (connected to the lounge area), kids yard, and a dog run. Both being fenced in.

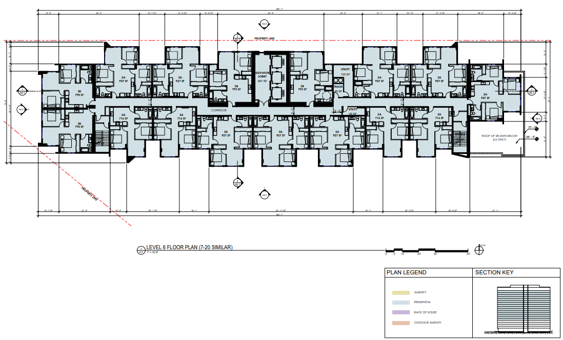
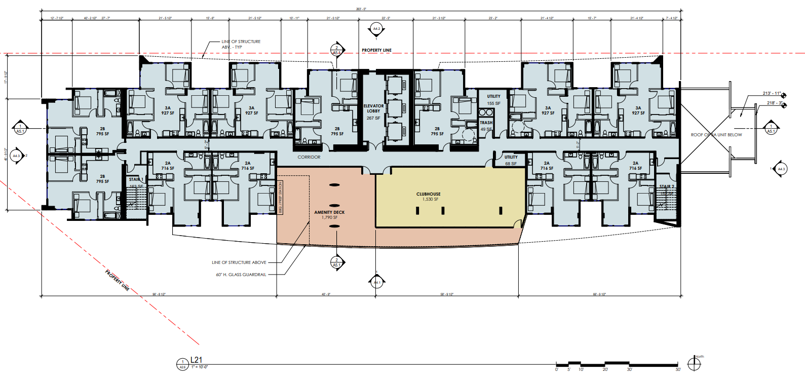
The residential portion of the building consists of 168 2 Bedroom units and 150 3 bedroom units, with the 3 managers units being 2 bedrooms. Each floor will have a trash room and utilities rooms, it is unclear if the ground floor laundry room is for the whole building. Between floors 2 and 5 there are 17 units, from 6 to 20 16 units. On the top floor there is a rooftop lounge area, a clubhouse and additional units.

Below you can find the breakdown of AMI per unit. Most units in this building are 60% AMI. A roughly equal amount above and below 60% AMI.

Architecturally this building has a linear facade that is not common in San Diego. With articulation being done vertically instead of horizontal. It creates a unique streamlined look. This will also be the southern most high rise in East Village if built which did prompt concerns of how it fit in being next to Barrio Logan. However the Mirka Tower will add to the skyline and is a great example of what affordable housing can be in this city. Housing for those who work in Downtown yet can not afford to have a family in the neighborhood.

https://docs.google.com/document/d/1MPTSllWvAPCwhm3mjhnMtHLJUmTpm6qje5EYHOp-VQk/edit?tab=t.0
https://www.mirkainvest.com/new-day-and-night-renderings-released-for-mirka-1000/
https://dsdfiles.sandiego.gov/PDRx/PRJ-1138932_MirkaTower_ProjectPlans.pdf
https://downtownplanningsd.org/agendas/august-20-2025/
https://www.treasurer.ca.gov/ctcac/meeting/2025/0805/staff/CA-25-594.pdf