

A new hotel, developed by Sunroad Enterprises and the Port of San Diego, is due to arrive on Harbor Island soon. Due to the land being reclaimed coastal tidelands, the site is under lease to Sunroad from the Port - with strict criteria on what can be developed there. One of these conditions is that land uses in the area must be public facing, hence Sunroad's hotel concept.

Harbor Island was part of a large land reclamation project the City undertook in the 1960s, originally intended to serve sailboats and other recreational watercraft - a use it still has. Over the years, however, Harbor Island has grown into a thriving hotel district, especially due to the nearby San Diego International Airport. While more hotels have been planned on Harbor Island in the past, the Sunroad East project is due to become its 3rd.

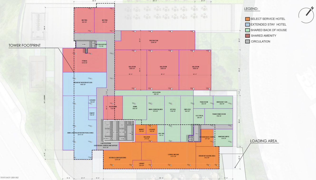
The planned hotel is broken into 2 segments, planned as separate hotels in a shared building. A 12-story, 198-room segment will serve as an "Extended Stay" style hotel, with more amenities, and rooms that feel more like a home. A 15-story, 252-room limited service hotel would also be built for business and budget travel, due to the incredibly close location to the airport (and promised lower rates).

The ground floor will have shared back of house services between both hotels, including kitchen space, administrative services, laundry and cleaning services, and more. The extended stay hotel will have a dedicated lobby and large dining room for meal service, as well as a special kitchen. The limited service hotel will have a small lobby and a breakfast dining area.

There are also 3 ballrooms and 2 meeting rooms for events and conventions, and a large fitness room shared between both hotels. It is unclear whether the outdoor patio, pool, and spa will be shared between both hotels. Outdoors, there will be a limited service restaurant and bar for public access. It will have outdoor dining and be connected to Harbor Island Drive and the Harbor Island promenade.

The project also includes new pedestrian pathways, a mixed-use trail, and new green space for public access. This pairs nicely with the Port's plan for a new promenade, connecting to a future neighborhood event space and a Top Golf. This promenade is also paired with a large new park.

It's no understatement to say the Port absolute needs this project for their Harbor Island master plan. However, Sunroad Enterprises has now delayed the project several times due to market conditions. In response, the Port has agreed to waive their rent and change some lease terms. They have also directly provided capital to the project as they legally need to share in some project costs (due to the nature of the project site as coastal tidelands). This functionally amounts to a bailout of an (albeit very important) project.


While this hotel has a very impactful project - and would be the first major change on Harbor Island in decades - the Port and Sunroad need to make sure they can work together and follow through on their grand vision and contribute to the continued development of the area in a way that benefits everyone.
Sources:
https://pantheonstorage.blob.core.windows.net/ceqa/Sunroad_Addendum_and_MMRP.pdf
https://www.sandiegouniontribune.com/2025/04/15/port-grants-developer-rent-concessions-totaling-19m-to-build-harbor-island-hotel/
https://timesofsandiego.com/business/2021/11/09/port-of-san-diego-oks-sunroads-plan-for-new-450-room-hotel-on-harbor-island/
https://sunroadenterprises.com/port-of-san-diego-oks-sunroads-plan-for-new-450-room-hotel-on-harbor-island-times-of-san-diego/
https://carrierjohnson.com/port-of-san-diego-board-of-port-commissioners-approves-sunroad-hotel-project-for-east-harbor-island/
https://web.archive.org/web/20211110023015/https://www.portofsandiego.org/press-releases/general-press-releases/port-san-diego-board-port-commissioners-approves-sunroad