

Rendering by GLO Architecture.
The Refuge is an under construction 78-unit affordable housing development in North Park, next to St. Luke’s Episcopal Church at the corner of 30th Street and Gunn Street. The project is the first affordable housing development built on church-owned land within the Episcopal Diocese of San Diego.
The idea for the project dates back to 2018, as a direct response to longtime St. Luke’s parishioners being increasingly priced out of the North Park neighborhood. To respond to this, St. Luke’s partnered with affordable housing developer Trestle Build, and San Diego-based architecture firm GLO Architecture to envision and deliver The Refuge. However, rather than selling its land outright to Trestle Build, the church entered into a $2.2 million 99-year ground lease to Trestle instead, stipulating the site be operated as long-term affordable housing.
The Refuge replaces a former community garden and church-owned outdoor event patio. It will include a corner ground-floor commercial space and will be built without on-site parking, reinforcing its role as a dense, transit-oriented infill project—in this case the transit is MTS bus route 2, with a stop a block away.

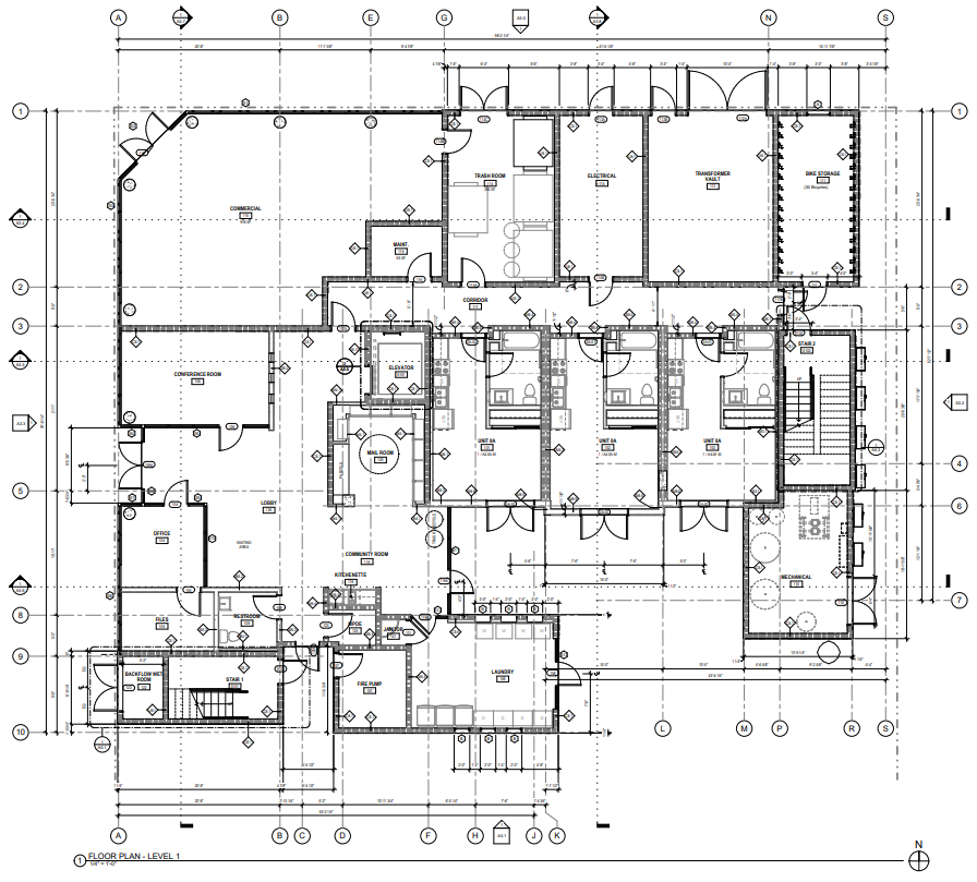
Floorplan by GLO Architecture.
Beyond the church partnership, however, The Refuge also reflects a recent shift in San Diego housing policy. Traditionally, when market-rate developers used the city’s Complete Communities Housing Solutions incentive program, they would provide a small number of affordable units within the projects themselves to satisfy the requisite affordability requirement. A change approved by the city council in 2023 revised this, however—allowing the required affordable units to be built off-site. Under this model, market-rate developers effectively could pay a third party to take on their affordable housing obligations.
The Refuge is a textbook example of this: according to David Allen, a principal at Trestle Build, affordable units from two market-rate projects in Bankers Hill and one in Hillcrest have been transferred into The Refuge—adding up to 41 out of The Refuge’s 78 apartments being off-sited affordable units from other developments. While specific terms remain confidential, Allen notes that combining the low-income housing tax credit program with Complete Communities Offsite allows The Refuge to deliver more affordable units than otherwise required, at deeper affordability levels, with supportive services included.
Housing advocates say the policy shift is already having an impact. Stephen Russell, president and CEO of the San Diego Housing Federation, argues that the off-site option is helping unlock new funding for affordable development. Because so much market-rate housing is being built right now, Russell says, the off-site provision has created a meaningful revenue stream for fully affordable buildings—projects that can be delivered more efficiently and at greater scale, ultimately helping move the needle on the region’s housing shortage.
City rules require that off-site affordable housing be built in areas with comparable amenities—and not in high-poverty or segregated neighborhoods. The St. Luke’s site qualifies as a “highest resource” neighborhood, meaning it offers cleaner air and strong access to schools, jobs, and transit—an uncommon setting for 100% affordable housing.

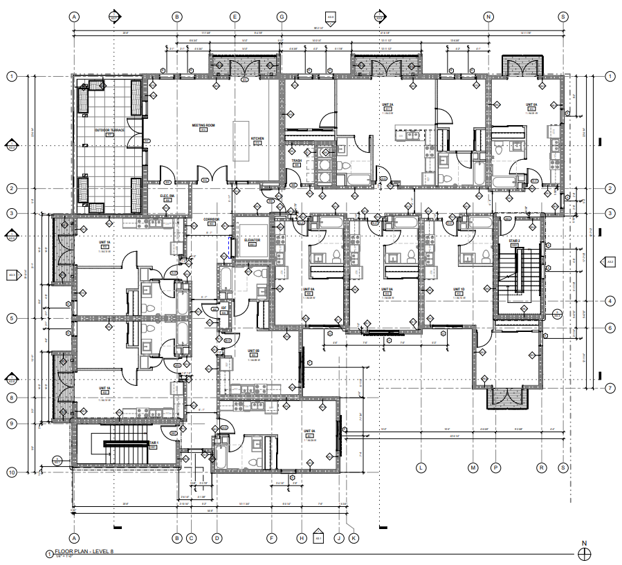
Floorplan by GLO Architecture.
Together, The Refuge’s church-led origins and policy-driven financing make it a small but telling example of how San Diego’s housing strategies are evolving, block by block.
—————————
SOURCES:
https://www.stlukesnorthpark.org/
https://edsd.org/news/st-lukes-breaks-ground-on-78-affordable-homes/